岩間駅 42分印刷する
おすすめポイント
400万円 | 土地面積公簿 1390.95㎡ 私道負担面積なし 土地権利所有権 |
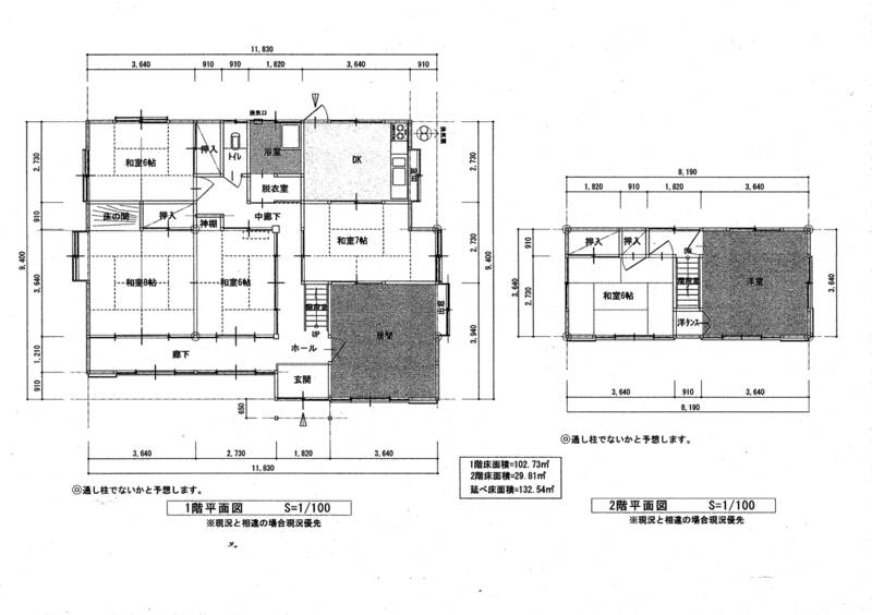
間取7DK 建物面積壁芯 132.54㎡ 構造木造 | 物件種目戸建住宅 築年月1981年3月27日(築45年0ヶ月) |
所在地笠間市上郷 | |
交通
| |
おすすめポイント
400万円 | 土地面積公簿 1390.95㎡ 私道負担面積なし 土地権利所有権 |
間取7DK 建物面積壁芯 132.54㎡ 構造木造 | 物件種目戸建住宅 築年月1981年3月27日(築45年0ヶ月) |
所在地笠間市上郷 | |
交通
| |
JR常磐線(取手~いわき) 岩間駅 徒歩42分
※地図上に表示される家マークのアイコンは付近住所に所在することを表すものであり、実際の物件所在地とは異なる場合がございます。必ず不動産会社におたずねください。
取引態様:専任媒介
茨城県知事免許(5) 第0006141号
所属協会:(公社)全日本不動産協会
公正取引協議会:不動産公正取引協議会
土地等探しは当社にお任せください。
スマートフォンで
この不動産会社の情報を
ご覧になれます
※携帯電話ではご覧いただけません。
JR常磐線(取手~いわき) 岩間駅 徒歩42分
(0299-45-7445)