NEW
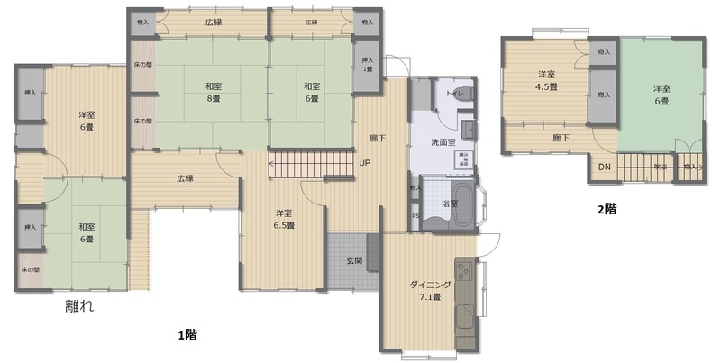
津山口中古住宅2階建 5DK+離れ+倉庫印刷するおすすめポイント離れや倉庫付で荷物が多い方も安心★5DK中古住宅です。1Fには14畳にもなる2間続きの和室があり、両側に広縁があるので日当たりも良好。専用庭では植物も育てられます。便利なカーポート付。
495万円 | 土地面積公簿 351.07㎡ 私道負担面積 土地権利所有権 |
間取5DK 建物面積壁芯 117.4㎡ 構造木造 | 物件種目戸建住宅 築年月1969年5月(築57年0ヶ月) |
所在地津山市津山口 | |
交通
| |
NEW
津山口中古住宅2階建 5DK+離れ+倉庫印刷するおすすめポイント離れや倉庫付で荷物が多い方も安心★5DK中古住宅です。1Fには14畳にもなる2間続きの和室があり、両側に広縁があるので日当たりも良好。専用庭では植物も育てられます。便利なカーポート付。
495万円 | 土地面積公簿 351.07㎡ 私道負担面積 土地権利所有権 |
間取5DK 建物面積壁芯 117.4㎡ 構造木造 | 物件種目戸建住宅 築年月1969年5月(築57年0ヶ月) |
所在地津山市津山口 | |
交通
| |
JR津山線 津山口駅 徒歩13分
※地図上に表示される家マークのアイコンは付近住所に所在することを表すものであり、実際の物件所在地とは異なる場合がございます。必ず不動産会社におたずねください。

取引態様:一般媒介
岡山県知事免許(9) 第0003250号
所属協会:(公社)全日本不動産協会
公正取引協議会:不動産公正取引協議会
宅地~事業用物件、賃貸物件のことまでお気軽にご相談下さい。
スマートフォンで
この不動産会社の情報を
ご覧になれます
※携帯電話ではご覧いただけません。
おすすめポイント離れや倉庫付で荷物が多い方も安心★5DK中古住宅です。1Fには14畳にもなる2間続きの和室があり、両側に広縁があるので日当たりも良好。専用庭では植物も育てられます。便利なカーポート付。
JR津山線 津山口駅 徒歩13分
(0868-25-0001)