NEW
紫波町北日詰第5 2号棟印刷するおすすめポイント担当者 伊藤 kei06040128ito@outlook.com
2,770万円 | 土地面積公簿 204.1㎡ 私道負担面積 土地権利所有権 |
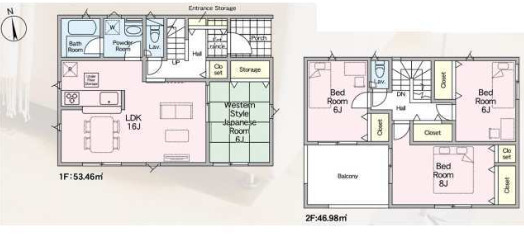
間取4LDK 建物面積壁芯 100.44㎡ 構造木造 | 物件種目戸建住宅 築年月2026年7月(築0年2ヶ月) |
所在地紫波郡紫波町北日詰字八反田 | |
交通
| |
NEW
紫波町北日詰第5 2号棟印刷するおすすめポイント担当者 伊藤 kei06040128ito@outlook.com
2,770万円 | 土地面積公簿 204.1㎡ 私道負担面積 土地権利所有権 |
間取4LDK 建物面積壁芯 100.44㎡ 構造木造 | 物件種目戸建住宅 築年月2026年7月(築0年2ヶ月) |
所在地紫波郡紫波町北日詰字八反田 | |
交通
| |
JR東北本線(黒磯~利府・盛岡) 日詰駅 徒歩4分
※地図上に表示される家マークのアイコンは付近住所に所在することを表すものであり、実際の物件所在地とは異なる場合がございます。必ず不動産会社におたずねください。

取引態様:一般媒介
岩手県知事免許(1) 第0002748号
所属協会:(公社)全日本不動産協会
公正取引協議会:不動産公正取引協議会
スマートフォンで
この不動産会社の情報を
ご覧になれます
※携帯電話ではご覧いただけません。
おすすめポイント担当者 伊藤 kei06040128ito@outlook.com
JR東北本線(黒磯~利府・盛岡) 日詰駅 徒歩4分
(019-681-9196)