NEW
スウェーデンハウス 神奈川 厚木市みはる野2丁目印刷するおすすめポイント
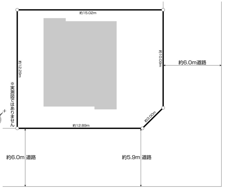
3,480万円 | 土地面積公簿 181.28㎡ 私道負担面積なし 土地権利所有権 |
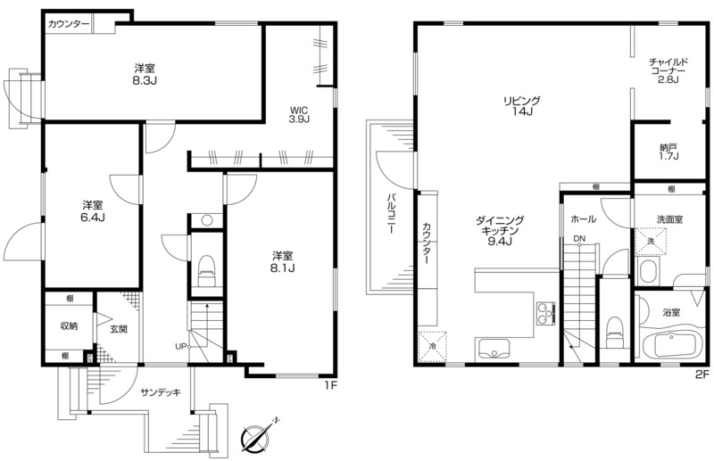
間取3SLDK 建物面積壁芯 126.05㎡ 構造木造 | 物件種目戸建住宅 築年月2008年9月下旬(築17年7ヶ月) |
所在地厚木市みはる野2丁目 | |
交通
| |
NEW
スウェーデンハウス 神奈川 厚木市みはる野2丁目印刷するおすすめポイント
3,480万円 | 土地面積公簿 181.28㎡ 私道負担面積なし 土地権利所有権 |
間取3SLDK 建物面積壁芯 126.05㎡ 構造木造 | 物件種目戸建住宅 築年月2008年9月下旬(築17年7ヶ月) |
所在地厚木市みはる野2丁目 | |
交通
| |
小田急線 本厚木駅 厚12系統 みはる野一丁目 バス32分 徒歩3分
※地図上に表示される家マークのアイコンは付近住所に所在することを表すものであり、実際の物件所在地とは異なる場合がございます。必ず不動産会社におたずねください。
取引態様:専任媒介
東京都知事免許(6) 第0074303号
所属協会:(公社)全日本不動産協会
公正取引協議会:不動産公正取引協議会
スマートフォンで
この不動産会社の情報を
ご覧になれます
※携帯電話ではご覧いただけません。
小田急線 本厚木駅 厚12系統 みはる野一丁目 バス32分 徒歩3分
(0120-899-123)