ヒューマンスクエア千葉山王 209印刷する
おすすめポイント
980万円 管理費等:11,440円/月 | 総戸数141戸 バルコニー |
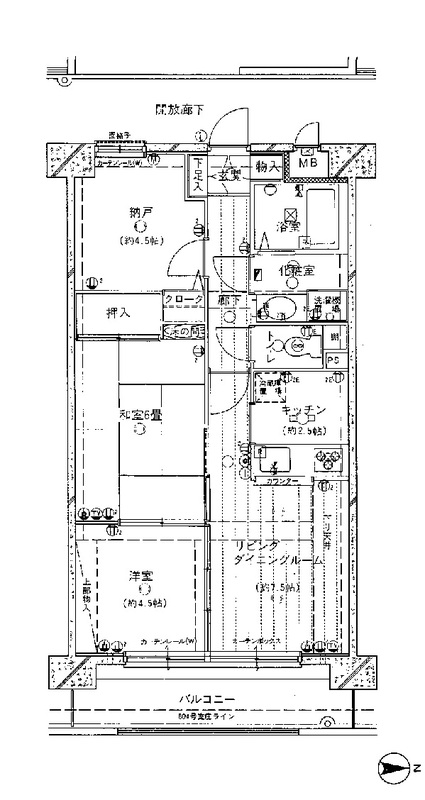
間取3LDK 専有面積壁芯 52.62㎡ 構造鉄筋コンクリート | 物件種目マンション 階建/階9階建/2階 築年月1994年4月28日(築31年11ヶ月) |
所在地千葉市稲毛区山王町 | |
交通
| |
おすすめポイント
980万円 管理費等:11,440円/月 | 総戸数141戸 バルコニー |
間取3LDK 専有面積壁芯 52.62㎡ 構造鉄筋コンクリート | 物件種目マンション 階建/階9階建/2階 築年月1994年4月28日(築31年11ヶ月) |
所在地千葉市稲毛区山王町 | |
交通
| |
JR総武本線 四街道駅 鹿放ケ丘 バス11分 徒歩8分
※地図上に表示される家マークのアイコンは付近住所に所在することを表すものであり、実際の物件所在地とは異なる場合がございます。必ず不動産会社におたずねください。

取引態様:売主
国土交通大臣免許(1)第0010509号
所属協会:(公社)全日本不動産協会
公正取引協議会:不動産公正取引協議会
スマートフォンで
この不動産会社の情報を
ご覧になれます
※携帯電話ではご覧いただけません。
JR総武本線 四街道駅 鹿放ケ丘 バス11分 徒歩8分
(03-3411-5575)