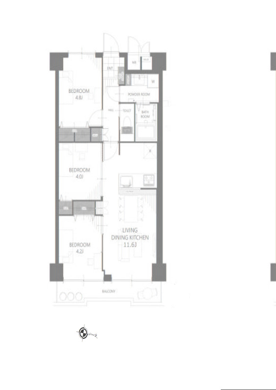
2,190万円 管理費等:7,030円/月 | 構造鉄骨鉄筋コンクリート 間取3LDK 専有面積壁芯 56.28㎡ |
階建/階地上10階, 地下1階建/7階 総戸数239戸 バルコニーあり 6.08㎡ | 物件種目マンション 築年月1983年7月(築42年9ヶ月) |
所在地さいたま市大宮区堀の内町1丁目 | |
交通JR京浜東北線 大宮駅 堀の内橋 バス14分 徒歩6分 | |
不動産会社: | |
さいたま市大宮区の売マンション
2
件中
1〜2件を表示
表示件数
20件
並び替え
築年数が浅い順
チェックした物件をまとめてお問合せ(無料)
チェックした物件をまとめてお問合せ(無料)
2
件中
1〜2件を表示
表示件数
20件
並び替え
築年数が浅い順









