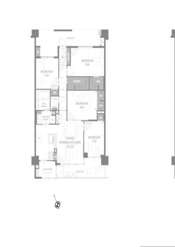
サンクタスヒューマン久喜 6階物件画像数3周辺画像数0動画数02,590万円管理費等:11,300円/月構造鉄筋コンクリート間取4LDK専有面積壁芯 86.58㎡階建/階7階建/6階総戸数100戸バルコニーあり 8.04㎡物件種目マンション築年月2003年2月(築23年2ヶ月)所在地久喜市久喜北2丁目交通宇都宮線 久喜駅 徒歩21分不動産会社:(株)日本ライフコミュニティ東京メトロ日比谷線 / 小伝馬町 徒歩 2分売買・仲介・斡旋・賃貸・管理・コンサルティング詳細を見るとりあえず保存お問合せ(無料)
ライオンズガーデン久喜壱番館 9階物件画像数3周辺画像数0動画数01,890万円管理費等:6,900円/月構造鉄骨鉄筋コンクリート間取3LDK専有面積壁芯 66.3㎡階建/階14階建/9階総戸数221戸バルコニーあり 8.25㎡物件種目マンション築年月1990年3月(築36年1ヶ月)所在地久喜市野久喜交通宇都宮線 久喜駅 徒歩15分東武伊勢崎線 久喜駅 徒歩15分不動産会社:(株)日本ライフエスコート東京メトロ日比谷線 / 小伝馬町 徒歩 2分売買・仲介・斡旋・賃貸・管理・コンサルティング詳細を見るとりあえず保存お問合せ(無料)
東鷲宮ニュータウン公園通り3-8号棟 3階物件画像数3周辺画像数0動画数01,890万円管理費等:5,000円/月構造鉄筋コンクリート間取3LDK専有面積壁芯 77.3㎡階建/階5階建/3階総戸数30戸バルコニーあり 7.47㎡物件種目マンション築年月1984年8月(築41年8ヶ月)所在地久喜市桜田3丁目交通宇都宮線 東鷲宮駅 徒歩6分不動産会社:(株)日本ライフエスコート東京メトロ日比谷線 / 小伝馬町 徒歩 2分売買・仲介・斡旋・賃貸・管理・コンサルティング詳細を見るとりあえず保存お問合せ(無料)