新栄倉庫ビル(香西東町)テナント 201印刷する
おすすめポイント
25.3万円 管理費等:3,999円 | 敷金3ヶ月 礼金なし 保証金なし |
|
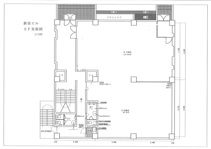
使用部分面積201.02㎡ 坪数60.8坪 坪単価0.41万円/坪/坪 | 駐車場空きあり 4,000円/月 物件種目店舗・事務所(一部) 築年月1974年5月(築51年9ヶ月) |
|
所在地高松市香西東町 |
|
| 交通 |
|
最新の空室状況や詳しい情報はこちらから!
お問合せ(無料)【お問合せ先】 (株)FTクリエイト
スマートフォンでこの物件の情報をご覧になれます
※携帯電話ではご覧いただけません。
- 交通
JR予讃線 香西駅 徒歩8分
- 所在地
- 高松市香西東町
- 物件種目
- 店舗・事務所(一部)
- 賃料
- 25.3万円
- 管理費等
- 3,999円
- 敷金 / 保証金
- 3ヶ月 / なし
- 礼金
- なし
- 敷引
- 坪単価
- 0.41万円/坪
- 保証金償却
- 権利金
- 造作譲渡
- その他一時金
- 維持費等
- 保険等
- 使用部分面積
- 201.02㎡
- 土地面積
- 坪数
- 60.8坪
- 築年月
- 1974年5月(築51年9ヶ月)
- 階建/階
- 4階建/2階
- 駐車場
- 空きあり 4,000円/月
- 建物構造
- 鉄筋コンクリート
- 建物名・部屋番号
- 新栄倉庫ビル(香西東町)テナント 201
- 接道状況
- 小学校
- 中学校
- 用途地域
- 準工業
- 設備
- 都市ガス 排水下水 駐輪場
- 備考
- 賃貸保証等: 任意加入 要相談
事務所用地として最適
その他、条件はご相談に応じます
- 契約期間
- 2年間
- 引渡可能時期
- 相談
- 現況
- 空き
- 条件等
- 更新料
- 物件番号
- 58829148
- 情報公開日
- 2024/02/28
- 次回更新予定日
- 2026/03/14
高松市香西東町周辺の地図
地図を見る※地図上に表示される家マークのアイコンは付近住所に所在することを表すものであり、実際の物件所在地とは異なる場合がございます。必ず不動産会社におたずねください。
情報提供会社

- 交通
- 住所〒761-2103 香川県綾歌郡綾川町陶6377-17
- TEL087-802-7852
- FAX087-802-7853
取引態様:一般媒介
香川県知事免許(1) 第0004626号
所属協会:(公社)全日本不動産協会
公正取引協議会:不動産公正取引協議会
スマートフォンで
この不動産会社の情報を
ご覧になれます
※携帯電話ではご覧いただけません。
賃貸住宅を借りるなら、物件検索サイト「ラビーネット不動産」で。賃貸マンション・賃貸アパート・賃貸一戸建ての物件情報を住みたいエリア/沿線・駅から検索し、賃料/間取り/駅からの徒歩といった希望条件で絞り込むことができます。このほか、物件の探し方から契約、引越、入居時の手続まで、お部屋探しに役立つ情報が満載。このサイトは全国組織の業界団体である公益社団法人全日本不動産協会が運営する不動産情報サイトのため、安心して物件をお探しいただけます。住まい探しのことならラビーネット不動産にお任せください!