三共小石川THビル 2F物件画像数10周辺画像数0動画数0143.3256万円管理費等:358,314円敷金なし礼金なし保証金10ヶ月使用部分面積358.94㎡坪数108.57坪平米単価駐車場空きなし 44,000円/月物件種目事務所(一部)築年月1994年3月(築32年1ヶ月)所在地文京区小石川5丁目交通東京メトロ丸ノ内線 茗荷谷駅 徒歩6分都営三田線 白山駅 徒歩15分不動産会社:CG(株) 詳細を見るとりあえず保存お問合せ(無料)
日本屋ビル 9階物件画像数2周辺画像数0動画数025.3万円管理費等:なし敷金5ヶ月礼金2ヶ月保証金なし使用部分面積壁芯 50.48㎡坪数15.27坪平米単価駐車場なし物件種目店舗・事務所(一部)築年月1991年3月(築35年1ヶ月)所在地文京区音羽1丁目交通東京メトロ有楽町線 護国寺駅 徒歩6分不動産会社:桜上居(株)JR中央・総武線 / 大久保 徒歩 3分世界中の方々に満開の桜の国での住まいのサポートを。詳細を見るとりあえず保存お問合せ(無料)
日本屋ビル 8階物件画像数2周辺画像数0動画数025.3万円管理費等:なし敷金5ヶ月礼金2ヶ月保証金なし使用部分面積壁芯 50.48㎡坪数15.27坪平米単価駐車場なし物件種目店舗・事務所(一部)築年月1991年3月(築35年1ヶ月)所在地文京区音羽1丁目交通東京メトロ有楽町線 護国寺駅 徒歩6分不動産会社:桜上居(株)JR中央・総武線 / 大久保 徒歩 3分世界中の方々に満開の桜の国での住まいのサポートを。詳細を見るとりあえず保存お問合せ(無料)
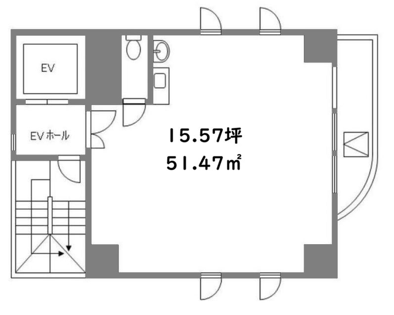
荒川ビル 5F物件画像数7周辺画像数0動画数017.9833万円管理費等:5,500円敷金なし礼金1ヶ月保証金3ヶ月使用部分面積51.47㎡坪数15.56坪平米単価駐車場なし物件種目事務所(一部)築年月1989年11月(築36年5ヶ月)所在地文京区本駒込5丁目交通JR山手線 駒込駅 徒歩10分都営三田線 千石駅 徒歩10分東京メトロ南北線 本駒込駅 徒歩10分不動産会社:CG(株) 詳細を見るとりあえず保存お問合せ(無料)
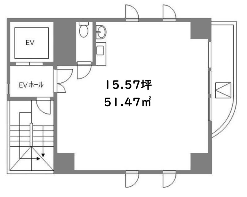
荒川ビル 6F物件画像数7周辺画像数0動画数017.9833万円管理費等:5,500円敷金なし礼金1ヶ月保証金3ヶ月使用部分面積51.47㎡坪数15.56坪平米単価駐車場なし物件種目事務所(一部)築年月1989年11月(築36年5ヶ月)所在地文京区本駒込5丁目交通JR山手線 駒込駅 徒歩10分都営三田線 千石駅 徒歩10分東京メトロ南北線 本駒込駅 徒歩10分不動産会社:CG(株) 詳細を見るとりあえず保存お問合せ(無料)
御茶ノ水天神ビル 201物件画像数17周辺画像数0動画数067.9388万円管理費等:163,053円敷金なし礼金なし保証金6ヶ月使用部分面積163.34㎡坪数49.41坪平米単価駐車場なし物件種目事務所(一部)築年月1988年8月(築37年8ヶ月)所在地文京区湯島3丁目交通東京メトロ銀座線 末広町駅 徒歩7分東京メトロ千代田線 湯島駅 徒歩8分東京メトロ丸ノ内線 御茶ノ水駅 徒歩8分不動産会社:CG(株) 詳細を見るとりあえず保存お問合せ(無料)
本郷瀬川ビル 604物件画像数21周辺画像数0動画数030.25万円敷金なし礼金なし保証金6ヶ月使用部分面積40.01㎡坪数12.1坪平米単価駐車場なし物件種目事務所(一部)築年月1988年6月(築37年10ヶ月)所在地文京区本郷2丁目交通東京メトロ丸ノ内線 本郷三丁目駅 徒歩3分都営三田線 水道橋駅 徒歩7分都営大江戸線 春日駅 徒歩7分不動産会社:CG(株) 詳細を見るとりあえず保存お問合せ(無料)
全水道会館 6F物件画像数2周辺画像数0動画数0107.25万円管理費等:275,275円敷金6ヶ月礼金1ヶ月保証金なし使用部分面積214.87㎡坪数64.99坪平米単価駐車場なし物件種目事務所(一部)築年月1986年7月(築39年9ヶ月)所在地文京区本郷1丁目交通都営三田線 水道橋駅 徒歩1分JR中央・総武線 水道橋駅 徒歩3分都営大江戸線 春日駅 徒歩8分不動産会社:(株)高商都営新宿線 / 新宿三丁目 徒歩 1分都内で店舗をお探しなら当社にお任せください。詳細を見るとりあえず保存お問合せ(無料)
布施ビル 202物件画像数2周辺画像数0動画数019.8万円敷金なし礼金なし保証金6ヶ月使用部分面積51.29㎡坪数15.51坪平米単価駐車場なし物件種目事務所(一部)築年月1981年3月(築45年1ヶ月)所在地文京区本郷3丁目交通東京メトロ丸ノ内線 本郷三丁目駅 徒歩2分東京メトロ千代田線 湯島駅 徒歩8分JR中央・総武線 御茶ノ水駅 徒歩10分不動産会社:(株)高商都営新宿線 / 新宿三丁目 徒歩 1分都内で店舗をお探しなら当社にお任せください。詳細を見るとりあえず保存お問合せ(無料)
本郷天理ビル 2階物件画像数2周辺画像数0動画数067.3746万円管理費等:160,416円敷金なし礼金なし保証金12ヶ月使用部分面積175.31㎡坪数53.03坪平米単価駐車場なし物件種目事務所(一部)築年月1979年3月(築47年1ヶ月)所在地文京区本郷3丁目交通東京メトロ丸ノ内線 本郷三丁目駅 徒歩5分都営三田線 水道橋駅 徒歩8分JR中央・総武線 御茶ノ水駅 徒歩9分不動産会社:(株)高商都営新宿線 / 新宿三丁目 徒歩 1分都内で店舗をお探しなら当社にお任せください。詳細を見るとりあえず保存お問合せ(無料)
白王ビル 4A物件画像数7周辺画像数0動画数016.5万円管理費等:41,250円敷金10ヶ月礼金なし保証金なし使用部分面積49.59㎡坪数15坪平米単価駐車場なし物件種目事務所(一部)築年月1972年3月(築54年1ヶ月)所在地文京区後楽2丁目交通JR中央・総武線 飯田橋駅 徒歩3分東京メトロ有楽町線 飯田橋駅 徒歩5分不動産会社:(株)高商都営新宿線 / 新宿三丁目 徒歩 1分都内で店舗をお探しなら当社にお任せください。詳細を見るとりあえず保存お問合せ(無料)
白王ビル 10AB物件画像数16周辺画像数0動画数031.9万円管理費等:79,750円敷金10ヶ月礼金なし保証金なし使用部分面積95.86㎡坪数28.99坪平米単価駐車場なし物件種目事務所(一部)築年月1972年3月(築54年1ヶ月)所在地文京区後楽2丁目交通JR中央・総武線 飯田橋駅 徒歩3分東京メトロ有楽町線 飯田橋駅 徒歩5分不動産会社:(株)高商都営新宿線 / 新宿三丁目 徒歩 1分都内で店舗をお探しなら当社にお任せください。詳細を見るとりあえず保存お問合せ(無料)
白王ビル 9CD物件画像数21周辺画像数0動画数022万円管理費等:55,000円敷金10ヶ月礼金なし保証金なし使用部分面積66.11㎡坪数19.99坪平米単価駐車場なし物件種目事務所(一部)築年月1972年3月(築54年1ヶ月)所在地文京区後楽2丁目交通JR中央・総武線 飯田橋駅 徒歩3分東京メトロ有楽町線 飯田橋駅 徒歩5分不動産会社:(株)高商都営新宿線 / 新宿三丁目 徒歩 1分都内で店舗をお探しなら当社にお任せください。詳細を見るとりあえず保存お問合せ(無料)
白王ビル 9階C・D物件画像数10周辺画像数0動画数022万円管理費等:55,000円敷金なし礼金なし保証金5ヶ月使用部分面積66.11㎡坪数19.99坪平米単価駐車場なし物件種目事務所(一部)築年月1972年3月(築54年1ヶ月)所在地文京区後楽2丁目交通都営大江戸線 飯田橋駅 徒歩3分東京メトロ丸ノ内線 後楽園駅 徒歩10分JR中央・総武線 水道橋駅 徒歩12分不動産会社:CG(株) 詳細を見るとりあえず保存お問合せ(無料)