スズヨシビル 5A物件画像数10周辺画像数0動画数068.97万円敷金なし礼金なし保証金6ヶ月使用部分面積256.49㎡坪数77.58坪平米単価駐車場なし物件種目事務所(一部)築年月1992年7月(築33年7ヶ月)所在地荒川区西日暮里5丁目交通東京メトロ千代田線 西日暮里駅 徒歩2分JR山手線 西日暮里駅 徒歩2分不動産会社:CG(株) 詳細を見るとりあえず保存お問合せ(無料)
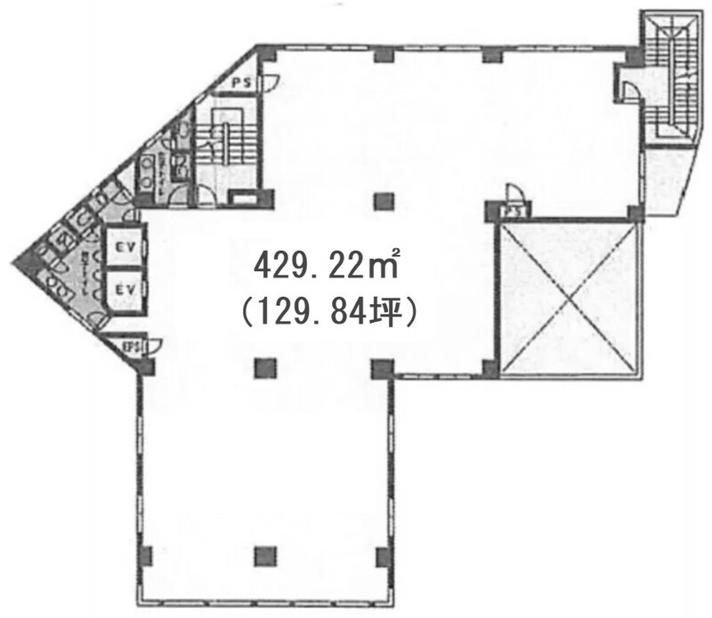
スズヨシビル 3階物件画像数10周辺画像数0動画数0171.3888万円敷金なし礼金なし保証金6ヶ月使用部分面積429.22㎡坪数129.83坪平米単価駐車場空きあり 物件種目事務所(一部)築年月1992年7月(築33年7ヶ月)所在地荒川区西日暮里5丁目交通東京メトロ千代田線 西日暮里駅 徒歩2分JR山手線 西日暮里駅 徒歩2分不動産会社:CG(株) 詳細を見るとりあえず保存お問合せ(無料)
スズヨシビル 5階B物件画像数10周辺画像数0動画数068.97万円敷金なし礼金なし保証金6ヶ月使用部分面積172.72㎡坪数52.24坪平米単価駐車場空きあり 物件種目事務所(一部)築年月1992年7月(築33年7ヶ月)所在地荒川区西日暮里5丁目交通東京メトロ千代田線 西日暮里駅 徒歩2分JR山手線 西日暮里駅 徒歩2分不動産会社:CG(株) 詳細を見るとりあえず保存お問合せ(無料)
四海ビル 3階物件画像数4周辺画像数0動画数095.9816万円管理費等:359,931円敷金なし礼金なし保証金10ヶ月使用部分面積360.56㎡坪数109.06坪平米単価駐車場空きあり 物件種目店舗・事務所(一部)築年月1988年12月(築37年2ヶ月)所在地荒川区荒川1丁目交通東京さくらトラム(都電荒川線) 荒川区役所前駅 徒歩2分東京メトロ日比谷線 三ノ輪駅 徒歩8分不動産会社:CG(株) 詳細を見るとりあえず保存お問合せ(無料)
四海ビル 4階物件画像数4周辺画像数0動画数095.9816万円管理費等:359,931円敷金なし礼金なし保証金10ヶ月使用部分面積360.56㎡坪数109.06坪平米単価駐車場空きあり 物件種目店舗・事務所(一部)築年月1988年12月(築37年2ヶ月)所在地荒川区荒川1丁目交通東京さくらトラム(都電荒川線) 荒川区役所前駅 徒歩2分東京メトロ日比谷線 三ノ輪駅 徒歩8分不動産会社:CG(株) 詳細を見るとりあえず保存お問合せ(無料)
日暮里安永ビル 7階物件画像数11周辺画像数0動画数0159.4428万円管理費等:531,476円敷金なし礼金2ヶ月保証金1,450万円使用部分面積399.3㎡坪数120.78坪平米単価駐車場なし物件種目店舗・事務所(一部)築年月1984年1月(築42年1ヶ月)所在地荒川区東日暮里5丁目交通JR山手線 日暮里駅 徒歩1分不動産会社:CG(株) 詳細を見るとりあえず保存お問合せ(無料)
赤荻方倉庫 A物件画像数5周辺画像数0動画数010.78万円管理費等:なし敷金2ヶ月礼金1ヶ月保証金なし使用部分面積33.1㎡坪数10.01坪平米単価駐車場なし物件種目店舗・事務所(一部)築年月1969年10月(築56年4ヶ月)所在地荒川区東日暮里4丁目交通JR山手線 鶯谷駅 徒歩7分JR山手線 西日暮里駅 徒歩11分JR常磐線(上野~取手) 三河島駅 徒歩10分不動産会社:(株)東宝不動産 本店JR山手線 / 西日暮里 徒歩 1分日暮里・西日暮里・田端駅周辺の物件のことなら地元密着型営業の東宝不動産へ詳細を見るとりあえず保存お問合せ(無料)